01、脚手架基础知识
核心规范:《建筑施工脚手架安全技术统一标准》GB 51210-2016
脚手架是施工中必不可少的临时作业设施,主要用于混凝土浇筑、砌筑、装饰、管道及设备安装等作业,为施工提供操作平台。也是保障电力建设及各类安装工程顺利进行的关键工具。脚手架的合理选型与使用,直接影响施工安全、工程质量和进度,并与经济效益密切相关。
02、脚手架的分类
脚手架种类多样,可按不同维度划分:
按用途:砌筑、装修、安装、模板支撑等脚手架。
按搭设位置:内脚手架、外脚手架。
按材质:木、竹、金属脚手架。
按结构形式:立杆式、框组式(门型)、桥式、吊式、挂式、挑式等工具式脚手架。
按立杆排数:单排、双排、满堂脚手架。

脚手架三维结构示意图⬆️

构配件⬆️





连墙杆⬆️

连墙杆⬆️

连墙杆⬆️

连墙杆⬆️

连墙杆⬆️

抛撑⬆️

剪刀撑⬆️

剪刀撑⬆️

剪刀撑⬆️

横向斜撑⬆️

型钢悬挑脚手架⬆️

型钢悬挑脚手架⬆️

型钢悬挑脚手架⬆️

型钢悬挑脚手架⬆️

型钢悬挑脚手架⬆️

型钢悬挑脚手架⬆️

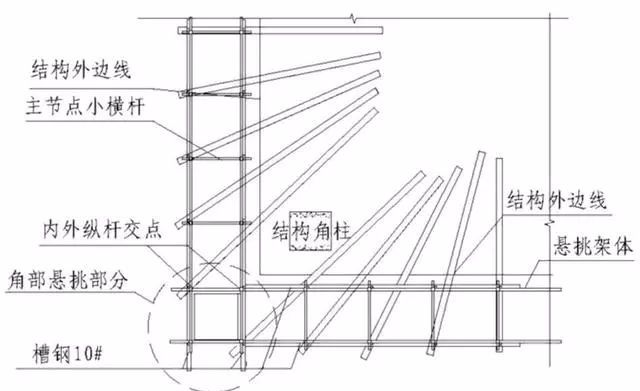
型钢悬挑脚手架(转角)⬆️

⬆️


钢管悬挑脚手架⬆️

钢管悬挑脚手架⬆️


卸料平台⬆️

卸料平台⬆️

卸料平台
⬆️

卸料平台⬆️
03、脚手架组成结构及功能
脚手架主要由垫板、底座、立杆、大横杆、小横杆、斜撑、抛撑、剪刀撑、连墙杆、扫地杆及附件等组成。各部件作用如下:
立杆:垂直设置,是脚手架的主要承重杆件,将荷载通过底座、垫板传递至地基。
大横杆:平行于墙面,与立杆连接形成整体,将脚手板荷载传至立杆。
小横杆:垂直于墙面,直接承受脚手板荷载并传至大横杆;在双排架中还起连接内外排、增强整体稳定性的作用。
斜撑:贴近外排立杆斜向设置(与地面夹角45°–60°),多设于转角处,防止脚手架纵向倾斜并承受水平力。
剪刀撑:外侧交叉设置的双斜杆(与地面夹角45°–60°),能将脚手架连成整体,增强稳定性并承受水平力。
抛撑:地面斜撑杆件(与地面约60°角),用于提高脚手架横向稳定性,防止外倾;搭设初期和拆除后期尤为关键。通常通过一道水平支撑与立杆连接,以增强稳定性。
连墙杆:按竖向≤4米、水平≤7米间距与建筑主体结构可靠连接,可承受拉、压力,传递风荷载及因立杆不均匀沉降引起的附加荷载。
扫地杆:贴近地面的纵向水平杆,用于增强立杆根部稳定性,防止立杆晃动或沉降不均。
脚手板:铺设于小横杆上,直接承受施工荷载并提供作业平面。








